岡山の不動産売買物件・賃貸物件、店舗、住まいお探しいたします

お電話でのお問合せもお気軽に!
086-221-1600

九蟠賃貸工場詳細情報

トップ > 賃貸-部屋(賃貸マンション・アパート・戸建)詳細情報 九蟠賃貸工場

情報登録日:2025/02/01 17:58

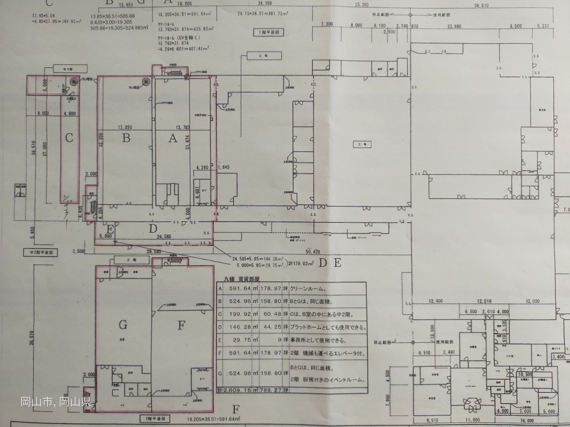
九蟠賃貸工場 【 岡山市東区 】1-2階/2階  2609.15㎡  1982年築

岡山市東区九蟠1119-2工場

賃料:3,333,275 円  (管理費:-)  敷金:2ヵ月/ 礼金:1ヵ月

  • 九蟠賃貸工場 工場
  • クリーンルーム(高レベル)178.97坪を含む物件になります。

    駐車場(近隣含) 看板取付可 冷暖房あり 24時間利用可 エレベーター 男女トイレ別

物件詳細概要

  • ▼ アクセス

    所在地 岡山市東区九蟠1119-2
    交通 両備バス 西大寺行き 金岡バス停 徒歩35分

    ▼ 賃料・管理費等

    賃料 3,333,275
    管理費
    敷金/礼金 2 ヶ月 / 1 ヶ月
    保証金
    敷引・償却金
    その他費用
    更新料
  • ▼ 部屋・建物

    専有面積 2609.15m²
    建物構造
    築年月 1982年 7月
    契約期間 10年(応相談)
    主要採光面 南東
    所在階/階建 1-2階/2階
    用途地域 工業地域
    天井高
    現況 居住中
    引渡し 2023年10月上旬予定
    取引態様 仲介(一般)

    ▼ 設備・サービス

    エアコン、エレベーター
  • ▼ その他

    駐車場:駐車エリア地代として一括304,500円税別(家賃込)(普通車87台、トラック可能)
    家賃 2,725,750円+ 駐車場 304,500円=3,030,250円+10%消費税=3,333,275円/月
  • ▼ 備考

    エアコン、エレベーターの管理費用メンテナンス修理取り換え費用は、残置物につき、入居者負担となります。
    消防点検・高圧点検費用は、入居者と家主の負担比率1/2
    その他条件は別途協議いたします。

画像

  • 建物内

  • 建物内

  • 建物内

  • 建物内

  • 建物内

  • 建物内

  • 建物内

  • トイレ

  • トイレ

資料ダウンロード

ページのトップへ戻る